幕墙工程:女儿墙压顶
幕墙工程:女儿墙压顶
女儿墙压顶:是指在女儿墙最顶部现浇混凝土(内配2条通长细钢筋),用来压住女儿墙,使之连续性、整体性更好。压顶即可当动词,又可以当名词,当动词时,就是压住女儿墙的意思;当名词时,它也是女儿墙的一部分,只不过是压在最顶部的。
1、施工顺序:
收口排版→找坡安装→防雷配合→打胶处理。
2、工艺控制要点:
幕墙在女儿墙压顶收口时应进行计算机排版,排版应遵循下列原则:
(1)与幕墙排版同时考虑;
(2)与外墙分格宜对应;
(3)宜与女儿墙栏板内侧分格对应;
(4)压顶与外墙女儿墙内侧无法对应时,应在顶面进行过渡调整;
(5)在压顶内侧底面应设滴水线。
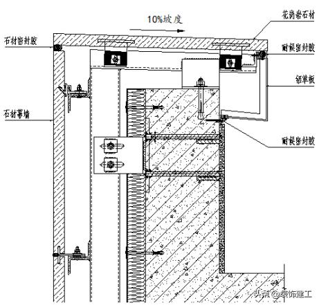
(6)压顶顶面应向内侧设 10%的坡度,压顶内侧底部采用铝单板收口做法;铝单板压顶收口下应设鹰嘴。外墙为涂饰面层时,压顶应向内坡,压顶平面外侧应设挡水。安装时应拉通线控制坡度、坡向。幕墙接缝、压顶与墙面交接处应打胶密封,胶面平顺。

石材压顶剖面示意图

铝板压顶剖面示意图
(7) 幕墙压顶安装应考虑土建顶部防雷做法,土建防雷分如下两中情况:暗敷防雷网,明装防雷网。
a:暗敷防雷做法:横向角钢作用在女儿墙上部,角钢两侧上挑固定挂件的角钢。

石材压顶内隐蔽防雷示意

铝板压顶内隐蔽防雷示意
使用女儿墙压顶铝板作为接闪器构造部分的做法,除将铝板骨架及铝板与避雷接引线连接外,还应使用铜导线将铝板连接。

女儿墙铝板跨接线

女儿墙铝板接地
b:明装防雷做法:防雷钢筋通过幕墙胶缝,穿过幕墙压顶,通过固定夹具固定。

石材压顶外露防雷示意

铝板压顶外露防雷示意
c:土建顶部防雷平面布置

幕墙压顶外露防雷立面布置示意图

幕墙压顶外露防雷平面布置示意图
3、质量要求
密封良好,排水通畅,打胶均匀美观。
标签:
