18栋四合院别墅,动人心魄的中国伟大古典建筑,这设计美呆了
18栋四合院别墅,动人心魄的中国伟大古典建筑,这设计美呆了
古代盛行的四合院是廊院式院落,周围回廊连接,四面有屋,现代的中式别墅也沿袭了传统,把中国传统建筑美学与现代建筑手法相结合。
下面这18栋四合院别墅,动人心魄的中国伟大古典建筑,这设计美呆了。
四合院别墅1

层数:2层,结构形式:砖混结构,主体造价90-100万,开间20.24米,进深30.22米,占地面积469平方米,建筑面积880平方米,建筑高度11.266米


一层:客厅、3个卧室、衣帽间、娱乐室、5个洗手间、厨房、餐厅

二层:客厅、5个卧室、衣帽间、娱乐室、书房、5个洗手间、露台
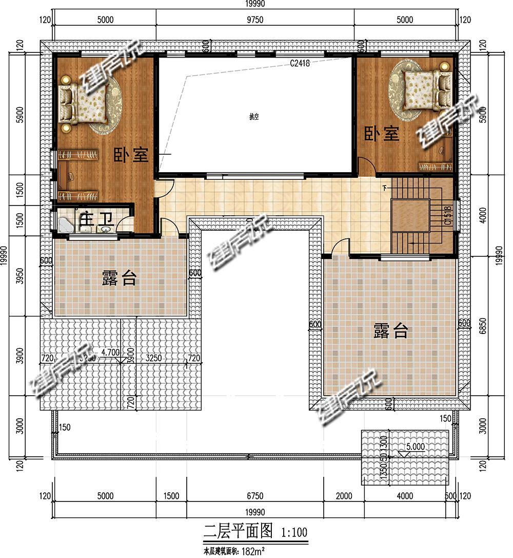
四合院别墅2

层数:2层,结构形式:砖混结构,主体造价50-65万,开间19.99米,进深19.99米,占地面积310.7平方米,建筑面积492.7平方米,建筑高度9.9米

一层:客厅、3个卧室、娱乐室、2个洗手间、厨房、餐厅

二层:挑空客厅、2个卧室、洗手间、露台
四合院别墅3

层数:2层,结构形式:框架结构,主体造价70-90万,开间21米,进深18米,占地面积367.1平方米,建筑面积607平方米,建筑高度10.6米


一层:客厅、储藏室、洗手间、厨房、餐厅、2个车库

二层:客厅、4个卧室、4个洗手间、阳台
四合院别墅4

四合院别墅5

四合院别墅6

四合院别墅7

四合院别墅8

四合院别墅9

四合院别墅10

四合院别墅11

四合院别墅12

四合院别墅13

四合院别墅14

四合院别墅15

四合院别墅16

四合院别墅17

四合院别墅18

全套别墅施工图纸
一套完整的别墅图纸,由5部分组成:3D彩色外观效果图+建筑施工图+结构施工图+给排水施工图+电气施工图,提供施工指导。
标签:
